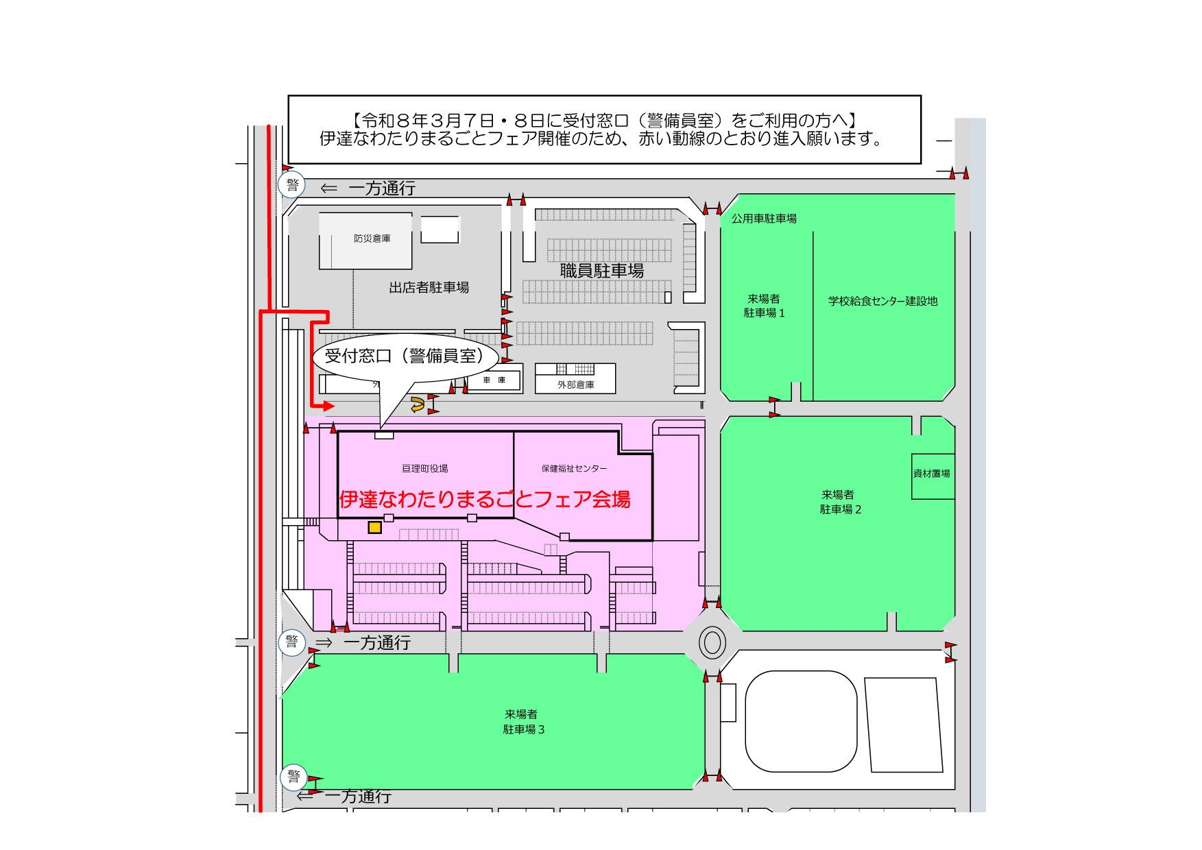
ホーム 新着情報 新着情報(観光・イベント) 伊達なわたりまるごとフェア開催に伴う休日窓口ご利用の方へ 令和8年3月8日(日)伊達なわたりまるごとフェア開催のため、前日の3月7日(土)とイベント当日に受付窓口(警備員室)をご利用になられる場合は、下記図面赤い動線のとおり進入願います。 お問い合わせ先 商工観光課/観光推進班 電話番号:0223-34-0513 FAX番号:0223-32-1433 かんたん検索 妊娠・出産 子育て 入園・入学 就職・退職 結婚・離婚 住まい・引越し 高齢・介護 お別れ もしもの時… 夜間・休日医療 緊急時連絡先 災害に備えて 避難場所 災害発生状況
商工観光課/観光推進班
電話番号:0223-34-0513
FAX番号:0223-32-1433